Toy Hauler Caravans that are available in Australia
Are you looking for a toy hauler caravan for your road trip around Australia, so that you can take some of those big boy and girl ‘toys’ with you and make the trip even more about fun and enjoyment?
Buying a toy hauler caravan means that you could take some motorbikes, or quad bike, or mountain bikes (that you don’t want to store outside the caravan, cos sheesh those things are expensive!).
- Toy Hauler Caravans that are available in Australia
- What is a toy hauler caravan?
- Toy Hauler Caravans Australia
- Austar Toy Hauler Playzone X
- Dreamseeker Caravans F-14 Tomcat
- Elross ECX Octane 21ft
- Evolution Caravans Toy Hauler
- Goldstar RV 21ft Toy Hauler
- Häuslein Toy Hauler
- Jayco Basestation 19.61-7
- Lumberjack Macedon
- Malibu Caravans Wildtracker Toy Hauler 22'8"
- New Age Caravans Xtreme Utility 22ft
- Paramount Caravans Tuff Mudda TM-1
- Royal Flair Caravans Raptor 13'6-1
- Supreme Caravans Base Camp 2460
- X Series RV X Play
- Travelhome Macquarie 29ft Sportz (Fifth Wheeler)
- More toy haulers in Australia
- Final thoughts on toy hauler caravans Australia
What is a toy hauler caravan?
A toy hauler caravan looks like a conventional caravan, except the (usually) the back wall of the caravan can be lowered down to create a ramp into the caravan.
The ramp leads to a section of the caravan that can be used for transporting ‘toys’ like motorbikes, quad bikes, bicycles, kayaks etc.
The floor of the garage area is a more resilient material so that it can withstand heavy and dirty things being pulled in and out, and it can be washed down when needed. It will also have tie down points so that you can secure those expensive toys during transit.
Most toy hauler garages are designed to be multi-purpose. So they’ll often have beds or bunks that fold down from the walls, or lower from the roof, and other options like an entertainment unit or fold out sofa.
You don’t have to be limited to using the space to haul toys either; the garage space of a toy hauler caravan could also be used for other things like a workshop, office or craft room.
Toy Hauler Caravans Australia
A few people have commented that they want to see the prices of caravans in these posts. So I’ve included prices for these toy hauler caravans in AUD.
BUT… you really need to be careful to compare apples to apples.
Where the manufacturer lists a base price I’ve included it; but where they haven’t, I”ve looked up the price of that model online.
A base price may not (probably won’t) include all the extras that a caravan that is already for sale at a dealer does.
So take these prices with a grain of salt, and be sure to do your own research.
We’ve had a hunt for what toy hauler caravans are available here in Australia. Check them out below.

Austar Toy Hauler Playzone X
If you’re serious about off-road adventures and need a caravan that can keep up with your dirt bikes or quad, the Playzone X from Austar should be on your radar.

This toy hauler is purpose-built for rugged conditions — with a 150 x 50mm DuraGal chassis, independent suspension, and a payload of up to 1000kg.
The insulated rear garage isn’t just a gear hauler — it converts into extra sleeping or living space and has options like a rooftop tent or bunk beds to suit your setup.
Inside, the layout is practical and modern, with a queen-size bed, compact kitchen, and ensuite with shower and toilet. There’s also lithium battery power, solar panels, and plenty of water onboard — so you can head well off-grid without sacrificing comfort.

What sets it apart is the robust build quality, flexibility in layout, and Austar’s no-nonsense approach to adventure travel. If you want a toy hauler that feels like a proper base camp, the Playzone X delivers.

Austar Toy Hauler Playzone X
Body length: 4.8m
Tare: 1,650 kgs
ATM: 2,200 kgs
Sleeps: 2-6
Price: from $45,500
https://austartoyhauler.com.au/products/playzone-x
If you’d rather watch this all in video format:
Dreamseeker Caravans F-14 Tomcat
Here’s something a little different from all the other toy haulers we have listed here!
Instead of the four bunk beds in the garage area, this toy hauler includes an entertainment unit and lounge (which can be a bed too). This toy hauler isn’t trying to appeal to the families, but couples who want to have all the fun and adventures during the day and relax with plenty of space in the evening. I love it!
The Dreamseeker F-14 Tomcat is a toy hauler with attitude!
It’s built tough, looks the part, and delivers both comfort and utility.
On the outside, it’s got black checkerplate, an aggressive stance, and full off-road suspension — ideal for getting off the beaten path.
Open up the ramp at the rear and you’ll find a generous garage that can double as a lounge, dining space, or bunk area, depending on your needs.
Inside, the front bedroom features a queen east/west bed, and the central section includes a full kitchen with microwave, stove, and a 175L fridge. There’s also an ensuite with combined shower and toilet — so you’re not roughing it.
Plus, with a 100 AmpHour deep cycle battery, 200 Watt of solar, and grey and fresh water tanks, you’re ready to go off-grid for days.
It’s a great option if you want something that’s not just for transporting bikes but also works as a genuine touring caravan.
And the name? Well, it’s fast, functional, and a little bit flashy — just like the jet it’s named after.



Dreamseeker Caravans F-14 Tomcat
Body length: 21ft / 6.4m
Tare: 3,200 kgs
ATM: 4,500 kgs
Sleeps: 2-4
https://dreamseekercaravans.com.au/caravan/tomcat/
Elross ECX Octane 21ft
The ECX Octane from Elross is built for extreme environments — deserts, snowfields, bushland — you name it. With a 4.5T ATM and 1000kg payload, you can carry serious gear — motorbikes, side-by-sides, boats in the rear garage.
Inside, it’s surprisingly refined, with premium appliances, diesel heating, aircon, and a full-size kitchen setup. Elross also includes lithium battery systems and solar as standard, plus water capacity to match.
Everything’s customisable too — layouts, colours, gear fit-out — so it’s perfect for buyers who know exactly what they want in a toy hauler.
If you’re the kind of traveller who likes to go remote and stay there comfortably, the ECX Octane is built to handle the extremes and keep you going.



Elross ECX Octane 21ft
Body length: 8.79m
Travel Height: 3.15m
Tare: 2,780 kgs
ATM: 4.5T
Sleeps: 2
Price: from $214,990
https://www.elross.com.au/toy-hauler
Goldstar RV 21ft Toy Hauler
If you’re after a toy hauler that’s budget-friendly but still packed with features, the 21ft Toy Hauler from Goldstar RV could be a smart choice.
It’s built with a hot-dipped galvanised chassis and all-terrain wheels, and while it’s not an extreme off-roader, it can handle unsealed roads and holiday parks with ease.
The rear ramp gives access to a flexible rear area that can serve as a garage, bedroom, or lounge — depending on how you set it up.
There are fold-down bunks, a convertible dinette, and the ramp can double as a raised deck, which is a really nice touch for outdoor living. Inside the main living space, you’ll find a queen bed, full kitchen with 3-burner stove and oven, plus a separate shower & toilet bathroom.
It’s not quite as flash as some of the more premium models, but for the price, it delivers excellent value. If you want to bring the dirt bikes along without blowing the budget, Goldstar’s toy hauler offers practicality at a more accessible price point.


Goldstar RV 21ft Toy Hauler
Body Length: 6.4m
Sleeps: 2-6
Price: from $76,600
https://goldstarrv.com.au/21ft-toyhauler-caravan/
Häuslein Toy Hauler
If you love the idea of a handcrafted timber interior and minimalist style, Häuslein’s Toy Hauler is going to turn your head.
Häuslein are known for their architecturally designed tiny homes, and this model brings that same design ethos to the toy hauler space.
It’s built on a galvanised steel chassis and features lightweight aluminium cladding on the outside — but step inside, and you’ll find warm timber finishes, simple Scandinavian styling, and an open-plan layout that feels more like a small apartment than a caravan.
The rear garage space is perfect for bikes, boards, or adventure gear, and once unloaded, it transforms into a lounge or spare sleeping area.
For off-grid travel, it comes standard with 3.2 kWh lithium batteries, 800 Watts solar, 80L fresh water tank and 40L grey water tank.
If you’re someone who values aesthetics and comfort just as much as function then this unique hauler brings a whole new vibe to the category. It’s boutique, beautiful, and a real standout.


Häuslein Toy Hauler
Total Length: 8m
Height: 2.7m
Width: 2.5m
Tare: 3,200kg
Price: from $69,080
https://www.hauslein.com.au/toy-hauler
Jayco Basestation 19.61-7
The Jayco Basestation is probably the most well-known toy hauler on the Australian market — and for good reason. This 19-foot model is packed with space and versatility.
You can sleep up to 6 people, thanks to the rear drop-down bunks. There’s a front queen east/west bed for the adults, and an internal bathroom with combined shower and toilet.
The rear garage is spacious and easy to access with the fold-down ramp, and it includes tie-down points and a durable floor, so it’s ready for dirt bikes, quads, or other heavy gear.
Being a Jayco, it’s backed by a national dealer network and has strong resale value. Plus, the Basestation includes solar and battery systems for off-grid camping.
Whether you’re a large family heading to motocross meets or a group of mates doing off-road trips together, the Basestation gives you room, flexibility, and peace of mind — all in a proven and trusted platform.



Jayco Basestation 19.61-7
Body Length: 6.07m
Total Height: 3.04m
Tare: 2,510kgs
Price: from $93,550
https://www.jayco.com.au/range/toy-haulers/basestation-toy-hauler
Lumberjack Macedon
Compact and affordable, the Lumberjack Macedon is a great option if you’re after a small toy hauler that doesn’t skip the essentials.
It has a rear ramp door for your bikes or gear, and inside you’ll find a clever layout that fits a small internal ensuite, a kitchen with fridge and cooktop, and sleeping for two or more with bunk options.
What’s really impressive is how much they’ve packed into such a manageable footprint — it’s only 8.1 metres total length and has a tare weight of around 2500kg.
The Macedon is a great pick for weekend warriors who don’t need a huge van but still want to bring a couple of dirt bikes or similar. And with a price tag that’s often much lower than the full-size haulers, it’s a smart entry point into the world of toy hauling caravans.



Lumberjack Macedon
Total Length: 8.1m
Total Height: 3.1m
Body Width: 2.4m
Tare: 2,500kgs
Price: from $79,990
https://www.lumberjackcampertrailers.com.au/product/macedon
Malibu Caravans Wildtracker Toy Hauler 22’8″
The Wildtracker Toy Hauler from Malibu Caravans is designed for off-grid, off-road adventure. At 22 feet 8 inches long, it’s a large van with room to carry your toys and live in comfort. The garage is located at the front of the caravan with the side access door folding down into a ramp.
Inside, there’s a front queen bed, spacious kitchen, and a central ensuite with a separate shower and toilet. It’s also well-equipped for free camping, with solar, lithium, and large water tanks.
The Wildtracker is ideal for couples or small families who like to travel far and wide with all their gear in tow.
Whether you’re heading bush or to the beach, this caravan gives you the storage, comfort, and off-road confidence to do it in style.


Malibu Caravans Wildtracker Toy Hauler 22’8″
Body Length: 6.9m
Tare: 2,680kgs
ATM: 3,500kgs
https://malibucaravans.com.au/models/wildtracker-toy-hauler/
New Age Caravans Xtreme Utility 22ft
The Xtreme Utility from New Age is one of the brand’s most versatile models — combining a spacious living area with a garage that can carry serious toys.
At 22 feet long, it gives you plenty of room inside, with an east/west queen bed up front, a combined shower and toilet, and a well-equipped kitchen.
In the rear, the toy area features a drop-down ramp, heavy-duty tie-downs and fold down bunks. The ramp door is wide and strong, making loading up dirt bikes or even a small quad super easy.
When going off-grid you’ll have two 110 AmpHour lithium batteries, two 200 Watt solar panels, two 110L water tanks and a 110L grey water tank — enough capacity to stay off-grid for a while.
It’s a strong choice if you want a balance of family touring, off-road performance, and practical gear hauling, all backed by a big-name manufacturer.



Body Length: 6.71m
Tare: 2,900kgs
ATM: 3,500kgs
Price from $110,990
https://newagecaravans.com.au/caravans/xtreme-utility/
Paramount Caravans Tuff Mudda TM-1
The Tuff Mudda TM-1 is built with one thing in mind — rough terrain. It’s a compact, off-road-ready toy hauler that’s ideal for riders and explorers who don’t want to tow a giant van.
The rear garage section is spacious enough for a couple of bikes or quads and transforms into a living area or sleeping quarters once your gear is out.
Inside you’ve got the basics done well: a comfy east-west bed, kitchenette with cooktop and fridge, and a compact ensuite with a combined shower and toilet. It’s all laid out efficiently without feeling cramped. You also get solar and battery power for off-grid use, plus decent storage throughout.
The Tuff Mudda suits adventurers who want a rugged, capable rig that doesn’t go overboard on size or frills — it’s simple, tough, and purpose-built.



Paramount Caravans Tuff Mudda TM-1
Total Length: 8.1m
Height: 3.1m
Width: 2.45m
Tare: 2200kgs
https://www.paramountcaravans.com.au/our-range/tuff-mudda
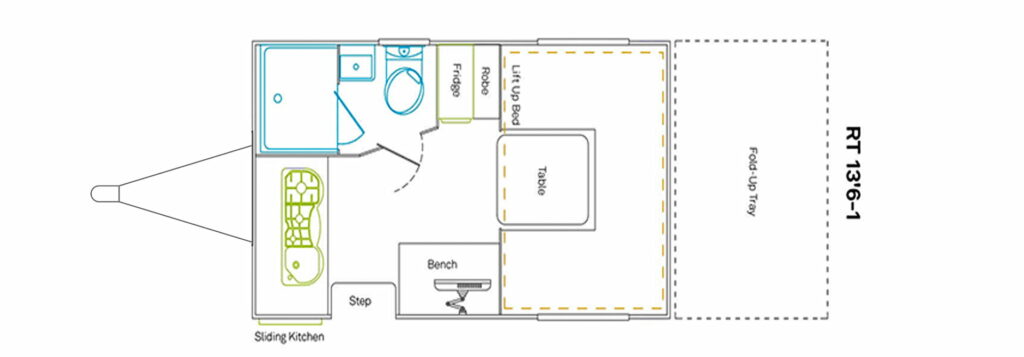
Royal Flair Caravans Raptor 13’6-1
Short, sharp, and built to handle the rough stuff — the Royal Flair Raptor 13’6-1 is one of the most compact toy haulers on the market, but don’t let its size fool you. It’s packed with clever features and rugged construction.
Built on a galvanised chassis with independent suspension, this single-axle van can go places the big guys can’t — all while carrying your motorbike or small ATV. The rear fold down rack allows you to carry the toys without taking up precious internal space, but can be folded away when not needed.
Up front, there’s a compact kitchen, combined shower and toilet, and a motorised drop down bed over the dining area.
It’s under 14 feet long, so it’s much easier to tow and maneuver, making it a solid choice for solo travellers or couples who want to hit the road with minimal fuss. Add in solar, water storage, and a few creature comforts, and you’ve got a mini rig that’s big on practicality.
For weekend trail riders or backcountry campers, the Raptor punches well above its size.



Royal Flair Caravans Raptor 13’6-1
Body Length: 4.11m
Total Height: 3.15m
Total Width: 2.5m
https://royalflair.com.au/caravans/raptor-range-rp136-1/
Supreme Caravans Base Camp 2460
If you’re looking for a toy hauler with serious presence and comfort, the Supreme Base Camp 2460 ticks a lot of boxes. This is a big rig — over 24 feet long — with a heavy-duty chassis, off-road suspension, and a roomy garage in the back that easily fits bikes, boards, or even a small buggy.
In the centre, there’s a full ensuite, well-equipped kitchen, and a choice of either an island queen, or an east/west queen and bunks.
It’s also set up for remote travel with solar, lithium batteries, and large fresh and grey water tanks. If you’re planning long trips or full-time touring with all your gear in tow, this caravan gives you the space and flexibility to do it in serious style.



Supreme Caravans Base Camp 2460
Body Length: 7.47m
Sleeps: 2-4
https://www.supremecaravans.com.au/base-camp-caravans
X Series RV X Play
Bold styling and modular design are what the X Series RV X Play is all about. This is a modern toy hauler made for travellers who want versatility and visual impact.
The garage space at the rear features a heavy-duty ramp and can be optioned with drop-down bunks, lounge seating, or left clear depending on what gear you’re carrying.
The living space includes a front east/west queen bed, a combined ensuite, and a kitchenette with a 3-burner stove, microwave, and fridge. Everything is laid out to maximise usable space without feeling cramped.
Off-grid capability is built in, with solar, battery management systems, and tanks for water and grey water.
The X Play is ideal for those who want a visually striking, purpose-built hauler that stands out in the caravan park or on the trail. It’s tough, it’s smart, and it gives you the freedom to travel your own way.



X Series RV X Play
Body Length: 4.88m
Total Height: 3.1m
Total Width: 2.4m
ATM: 2,950kgs
Price from: $78,990
https://xseriesrv.au/toyhauler-x-play
Travelhome Macquarie 29ft Sportz (Fifth Wheeler)
We’re wrapping up the list with something a little different — the Travelhome Macquarie 29ft Sportz, a fifth wheel toy hauler that offers serious space and comfort. If you’ve got a suitable tow vehicle — like a ute with a turntable hitch — this rig gives you a whole new level of towing stability and interior room.
The rear of the van features a full-sized garage with tie-down rails, and a heavy-duty ramp. Move forward and you’ll find a large open-plan living space with a club lounge, kitchen, full ensuite, and a raised bedroom above the hitch.
The finish is modern and spacious, with options for air conditioning, upgraded solar, and extra water storage.
This is a great option for those who plan to travel for extended periods or even live on the road full-time — with dirt bikes, adventure gear, or even work tools in tow.
It’s not a small investment, but the fifth wheel design gives you unmatched comfort and towing confidence. For the right buyer, the Macquarie Sportz is next-level.
Travelhome Macquarie 29ft Sportz
Length: 9m
Height: 3.05m
Width: 2.22m
Tare: 2,750 kgs
ATM: 3,490 kgs
Sleeps: 2-4
https://www.travelhome.com.au/portfolio/travelhome-macquarie-29-ft-sportz/
More toy haulers in Australia
There are more toy hauler vehicles in Australia like camper trailers and caravans with an extended platform, or the ability to haul toys above the camper or caravan. You could check out:
Patriot Campers
https://www.patriotcampers.com.au/

EquiVan
And there are horse float caravans like the EquiVan that could just as easily be used for toys or horses. Now that’s what I call multi-functional!

Final thoughts on toy hauler caravans Australia
After seeing this selection of toy hauler caravans that are available here in Australia, do you think it’s something that you would make the use of? Or has it made you realise that a ‘conventional’ caravan is more suitable for you?
If you’re not sure that the toy hauler is right for you, we’ve compiled lists of other types of RVs that are available here in Australia. These might be more suitable for you?
Or has it made your realise that an off-road camper trailer is what you need, with the ability to carry the toys either above the camper or on an extended trailer?




Gavin
Friday 13th of November 2020
Absolutely been looking for a toy hauler to point having them if you cant take them and the Mrs demands more luxury than a tent these days. Thanks for compiling this list, it would be good if you listed Australian Made /and owned and off road capabilities as well.
Craig
Friday 19th of June 2020
We have a Caria. Love it. Believe that Austar rose out of the ashes of Caria?
Leigh Murray
Monday 15th of June 2020
The Austar 3 Style starts at $56000 FYI and also I didn't see mention of the Caria Toy Hauler. Just saying. I like what you've done and found it helpful now I just have to decide. Cheers
Michelle
Monday 15th of June 2020
Ah great, thanks for the extra info Leigh. I'll update that price now. I looked for Caria, but they've got nothing current online (no website and FB page hasn't been updated for 2 years) so I'm presuming they've gone out of business? And I was so keen on seeing more of that unique 'double story' garage!